객실 구성
침실 3, 침대 2, 욕실 2
할인 혜택
연박할인: 2박 이상 예약 시 추가 1박 당 50,000원 할인
객실 소개
아름다운 청풍호와 산들이 어우러진 완벽한 전망을 갖춘 스테이동은 자연과 하나되는 특별한 경험을 제공합니다. 전체 통창으로 사방으로 펼쳐지는 아름다운 청풍호의 넓은 호수와 겹겹이 춤추듯 너울지는 산들 사이에서 특별한 휴식을 즐겨보세요.
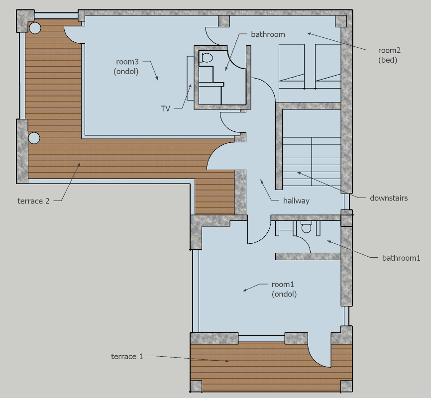
3층(2층)에는 41평의 객실이 있으며, 3개의 방 중 2개는 서로 연결된 커넥팅룸이고 1개는 복도로 분리된 별도 방입니다. 각 방에서 별도의 테라스로 나가 아름다운 풍경을 감상할 수 있습니다.
1층 다목적실에는 135인치 초대형 스크린과 4K 고화질 빔프로젝터가 설치되어 있습니다. 영화감상은 물론 모임, 워크샵, 토론회 등 다양한 용도로 활용하실 수 있습니다. 사용을 원하실 경우 사전 문의 부탁드립니다.
Basic Facilities
침대, 스마트 TV, 소파, 옷걸이, 화장대, 식탁, 대형 냉장고, 전기밥솥, 전자렌지, 전기포트, 인덕션, 주방집기일체, 드라이기, 수건, 샴푸, 바디워시
Special Facilities
프라이빗 테라스, 135인치 4K 빔프로젝터 (1층 다목적실)
이용 안내
도시의 삶에 지치고, 자연에서의 휴식이 필요한 분들을 위해 운영하게 되었습니다.
지나친 음주는 휴식을 방해합니다.
흡연보다는 청풍호의 시원한 공기를 느껴주세요. (흡연은 흡연구역에서만 가능합니다.)
애정이 가득 담긴 건축물입니다. 모두가 오랫동안 함께 누릴 수 있도록 시설 사용에 유의해주세요.
자연 친화 공간으로, 벌레와 곤충이 있을 수 있습니다. 놀라시지 않도록 주의하겠습니다.
안전과 방범을 위해 외부 경계와 현관문을 향해 CCTV가 설치되어 있습니다.
미성년자의 경우 보호자 동행 없이는 투숙이 불가합니다.
반려동물 동반은 불가합니다.
배치도
1층과 3층으로 구성된 스테이 동의 공간 배치를 확인하세요.
1층

확대보기
3층

확대보기
room information
1층
3층 (메인 플로어)
외부 공간
KITCHEN & MULTI-ROOM
주방과 다목적실이 결합된 넓은 공간입니다.

1 / 8
